R.C.D (REVERSE CIRCULATION DRILLING MACHNE)
In Bored pile, when drilling soft and hard rock layer, R.C.D is essential and State-of the-art eqipment for foundation of bridges, high buildings and causeways.,etc.
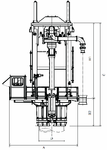
First, install pile-top drill rig and connect the cutting head attached rock-bit at the end with the drill string. After the rig connects with the drilling string, it drills rock layers by rotating the cutting-head. Crashed stocnes are into cutting-head with water by injected compressed air and takes out through drill-string.



